Тип: с автоматикой; Мощность: 22 кВт; Виды топлива: дрова,каменный уголь,торфяной брикет; Отапливаемая площадь: до 220 м2; Максимальный КПД: 87%; Габариты (ВхШхГ): 1150х510х780мм; Вес: 290 кг
Информация на сайте представлена для ознакомления и не является публичной офертой.
У вас есть список материалов для дома?
Мы дадим гарантированно самую низкую цену в РБ
Присылайте спецификацию на почту osn.by@yandex.ru
- Описание
- Отзывы о товаре
- Задать вопрос
- Дополнительно
-
Твердотопливный отопительный котел TIS PLUS DR - это инновационный котел премиум класса (котел длительного горения).
В новой линейке котлов серии TIS PLUS DR, сохранен большой размер камеры горения в котле.
Котёл оснащен принудительной подачей воздуха для сжигания топлива, а так же новым и стильным регулятором TIS tronic 260, который в свою очередь поддерживает контроль нагрева системы отопления и контура ГВС, и также оснащен специальными функциями защиты от замерзания и перегрева котла.
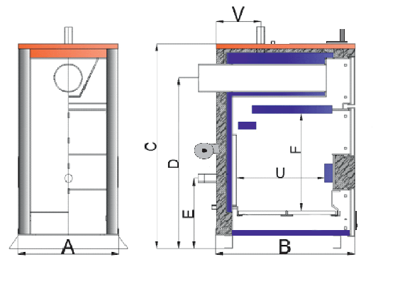
схема котла:

преимущества:
Имеет в заводском комплекте самую современную европейскую автоматику TIS tronic 260, а также новейший модулируемый вентилятор наддува воздуха для горения и тления, что позволяет котлам легко адаптироваться к любой современной системе отопления;
Удачные конструкторские решения: очень большая камера загрузки топлива и долговечные колосники из чугуна. Расширенная топка позволяет сжигать дрова длиной 50 см;
При монтаже в систему отопления водонагревательного бойлера косвенного нагрева происходит экономичный нагрев воды для пользования (ГВС);
Котел производится из лучшей сертифицированной котловой стали марки P-265-GH. Толщина используемой стали 5 мм;
Корпус котла сделан со сплошной водяной рубашкой, которая забирает максимальное количество выделяемого тепла в систему отопления;
Эффективность котла (реальный КПД) при номинальной мощности гарантированно не ниже 82%, а при пиковой нагрузке эффективность может достигать реальных 90%;
Рекомендуется для сжигания таких видов топлива, как дрова, торфяной брикет, уголь и различные древесные отходы;
Рекомендуется использовать для энергоэффективных систем отопления в практически любых промышленных, офисных и частных объектах;
Мощность при номинальной работе котлов от 10 до 27 кВт;
Гарантийный срок 5 лет. Декларируемый срок службы котлов TIS не менее 20 лет c начала эксплуатации.габариты:

Параметры Ед.
изм.Модель котла TIS PLUS DR 17 TIS PLUS DR 22 TIS PLUS DR 27 A (ширина) мм 440 510 570 B (глубина) 780 780 780 C (высота) 1150 1150 1150 D 960 960 960 E 400 400 400 F 550 550 550 U 500 500 500 V 250 250 250 метод установки:

Масса котла 290 кг Мощность 22 кВт Термостат есть Защита от перегрева нет Основной вид топлива дрова,каменный уголь,торфяной брикет Максимальная температура в контуре отопления 85 °C Материал котла сталь PGH265 -
Вы можете задать любой интересующий вас вопрос по товару, наличию или работе магазина.
Наши специалисты обязательно вам помогут.
-
- Доставка: По Минску - в день заказа. По РБ - до 3-х дней
- Установка и монтаж отопительного оборудования, проектирование
- Возврат: В течении 14 дней. Обмен: В течении 30 дней
Информация на сайте представлена для ознакомления и не является публичной офертой. После оформления с Вами свяжется менеджер для подтверждения наличия товаров в магазине, или придёт уведомление на оставленный Вами email об отсутствии и возможных (или не возможных) сроках поставки. Спасибо за понимание.
Все технические описания устройств в нашем каталоге базируются на основании информации, взятой только из официальных источников, в том числе с официальных сайтов производителей, достоверность которых не вызывает у нас сомнения.
К сожалению, даже официальные документы могут содержать ошибки и опечатки - это не позволяет нам утверждать, что абсолютно все, указанные нами данные точны и соответствуют действительности. Практически все производители оставляют за собой право вносить изменения в характеристики или комплектацию товара без предварительного уведомления.
Мы настоятельно рекомендуем пользоваться опубликованной информацией в качестве основного обзора товара, и при совершении покупки уточнять параметры, имеющие для Вас большую значимость, у наших менеджеров.
Будем рады осуществить доставку в следующие регионы Беларуси: Брест, Брестская область. Гомель, Гомельская область. Витебск, Витебская область, Могилев, Могилевская область, Гродно, Гродненская область. Минск, Минская область.
















